Housing is located in Gliwice near new
Education and Buisness Centre.
Building is designed as an offset of
site outline. That alloweed to create inside a big private space for
residences with places to relax, spend free time, meet with others or
play with children. Outer facades are open galleries with entrances
to flats. Inside there are irregular balconies with view into the
greenery.
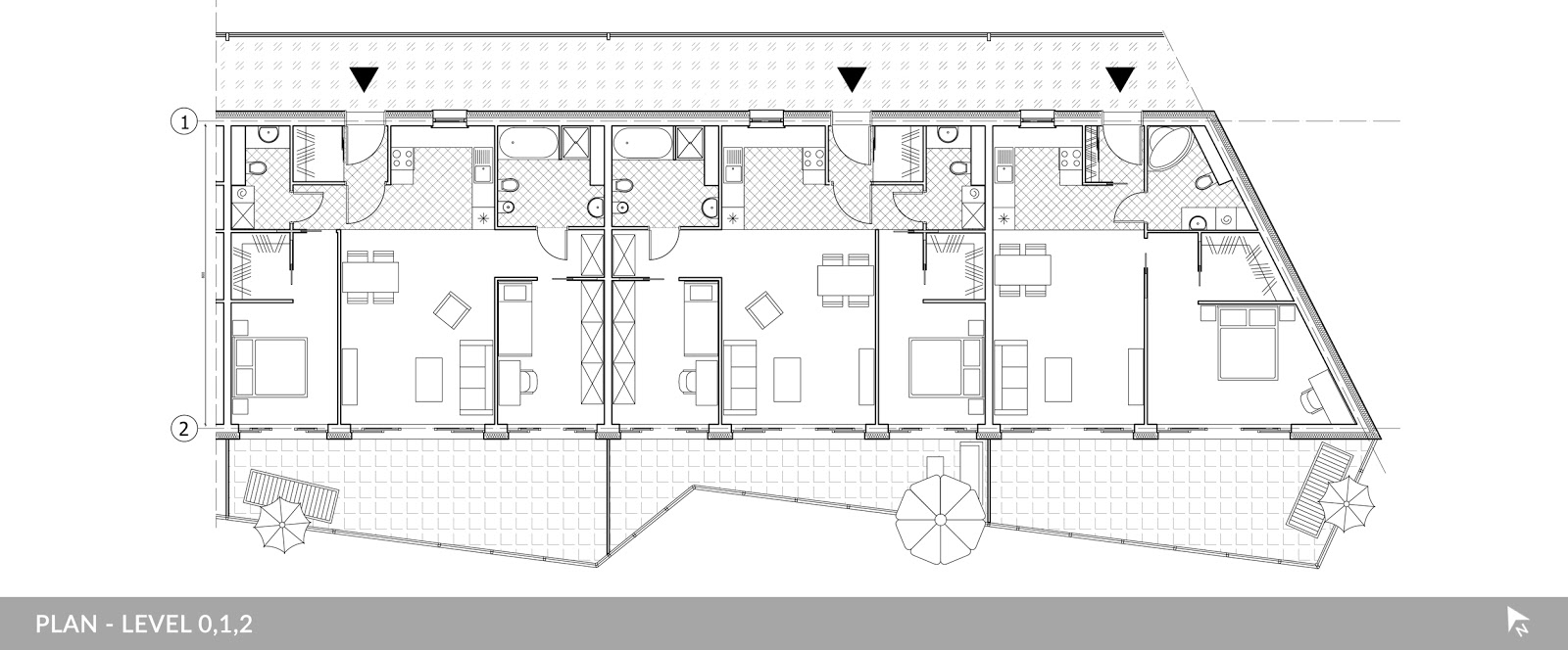
Building is modular. The modules
contains a few different types of flats. The smallest has 50sqm and
the biggest 120sqm. In the north part on the last two floors is
entertainment area for residences with gym, fitness room, bowling and
billard tables Under the green field there's a underground parking.
Building is covered with brick which is
typical finishing for traditional silesian houses. Glazed staircases
and steel construction elements make building look modern.














